|
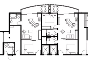
Sapphire beach club was built
in three stages. Construction spanned
the 90's. The first stage, the middle
tower, is 8 floors tall and houses the
large lobby. The east tower is 10 floors
tall, and the west tower is the tallest on
the island at 12 floors. There is
underground parking under
the buildings for over a
hundred cars.
|
|
 |
|
The hotel has several large
generators. Two sit atop the entry
canopies, invisible to the road below.
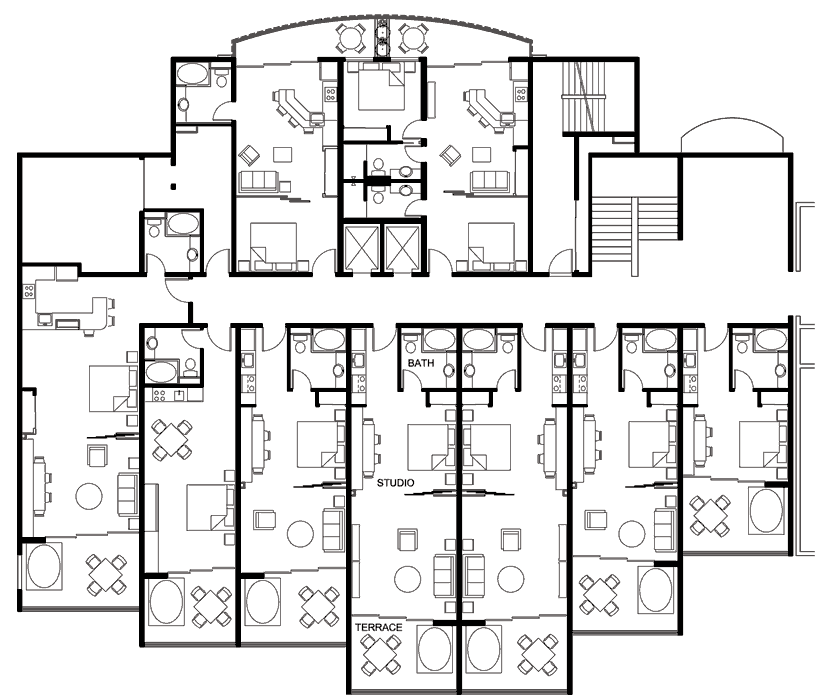
All ocean view rooms have private
Jacuzzis on the balconies, and all
bathrooms are custom made in Italian
marble.The hotel has 301 rooms,
many of which have pull-out sofas.
At full occupancy, the hotel
sleeps 782.
|
|