|
|
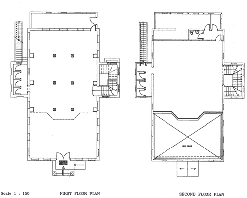
Renovation of St. Joseph School
David Morrison Associates redesigned the 120 year old wooden
school building to house Tommy Hilfiger, a top range clothing boutique.
The school was in a state of disrepair after hurricane Luis in 1995. The
charm and tradition of the original building was kept, turning it into
one of Frontstreet's most prominent traditional buildings.
|
|